What goes around, Comes around
There are themes which have appeared in many of my postings. Many incorporate past experiences to illustrate thoughts and arguments, as the Module’s content is considered. Recycled thoughts & demons which are to be enjoyed and exercised. The first part of our module addresses to Sustainability. Much of its contents hold fascination as `Sustainability’ is engaged through one dialogue, that of energy, its’ impact on Urban Design. Simply put, the word, has provoked thought. Per definition, `Sustainability’ should not be limited to one definition as it relates to Urban Design. There are other inter-related considerations. For consideration of topic, an expanded list is suggested. These are not equivocal. Possibly you may develop others?
- Sustainability of Thought
- Sustainability of Work product and technologies
- Sustainability of Urban Fabric
- Sustainability of Urban Memory and Dreams
- Sustainability of Honesty and Common Sense
Sustainability of Thought
Douglas Farr begins his recent lecture, by identifying Richard Nixon as a environmentally sensitive president. In 1973, this country experienced the Arab Oil embargo, resulting in fuel rationing, something not seen since the Second World War. Nixon’s interest was fostered by these impacts on the General Public, coupled with the Santa Barbara Oil Spill. Farr cites creation of the Environmental Protection Agency (1 Jan. 1970) and signing the Endangered Species Act ( 28 Dec.1973 ) as two of several pioneering environmental acts. Architectural thinking moved from that of heroic buildings to those of environmental and social concerns. Consider – the first Earth Day occurred in April 1970.

`Au currant’ in today’s architectural dialogue are the buzzwords of energy efficiency, environmental design, LEED. Sustainability. Architectural ideas which appear to be new – `Triple pane windows, solar orientation, increased Insulation ( `R-values .) These are the stuff of the seventies, and not last ten years. What is unstudied, are the architectural innovations and directions produced by the first architectural responses in the 1970’s. Low-E buildings came into being as a result of this period. The first energy efficiency codes were developed and instituted during this period. Many were performance based. Forty years after much environmental work was accomplished, the Urban Design / Architectural world is re-inventing, and starting to examine responsible environmental design as if is a `new world.’ There is a certain naiveté with younger designers. Their discovery is new, thus it is better. Two examples – the late Malcolm Wells’ work in the mid-seventies regarding underground and green buildings. Wells’ work and others, recognized that the best means of conserving energy, were to design structures which placed less demands on fuels. Limit costs of heating & cooling, by accounting for these through construction, rather than rely on mechanical systems and novelty. Exhibits 1-2 are examples of his formative work.
The other examples are personal, energy efficient passive design work. Exhibits 4-5. As design professionals, environmental considerations need to become commonplace. This is counter to the current movement as the pendulum swings from the period of affordable, inefficient and detrimental energy sources to those environmentally responsible.What is not occurring is the `Sustainability of Thought.’ Current thinking is just now arriving at the early eighties. At this time, environmental architectural thinking diminished, as the cost of energy dropped.
Sustainability of Work product and technologies
Inter-related to energy efficiency, is that of sustainable work product and technologies. Architectural schools graduate students. Ones prepared to work in professional offices. These graduates hold varying degrees of technical proficiency. They enter into a professional tradition, that of apprenticeship, experience and examination. This constitutes ongoing study and education. In this realm, technical and practical aspects of practise are garnered. Practical knowledge is tied to those one apprentices under, and conditions inherent to the area of practice. Consider, most architects design to average conditions and climate. This creates two issues : 1. ) urban designs & buildings which do not perform well, or fail, during periods of extreme temperature and conditions; and 2.) designs perform poorly as they age. Extremes as well as average thermal and climatic considerations need to be accounted for, and are often not. By understanding and designing for extremes, designers may provide for the longevity and performance of projects. Economies from longevity may be realized. The Architect and Urban Designer’s `stock in trade is the quality of their advice.’ We study, the work product of our study is our advice.

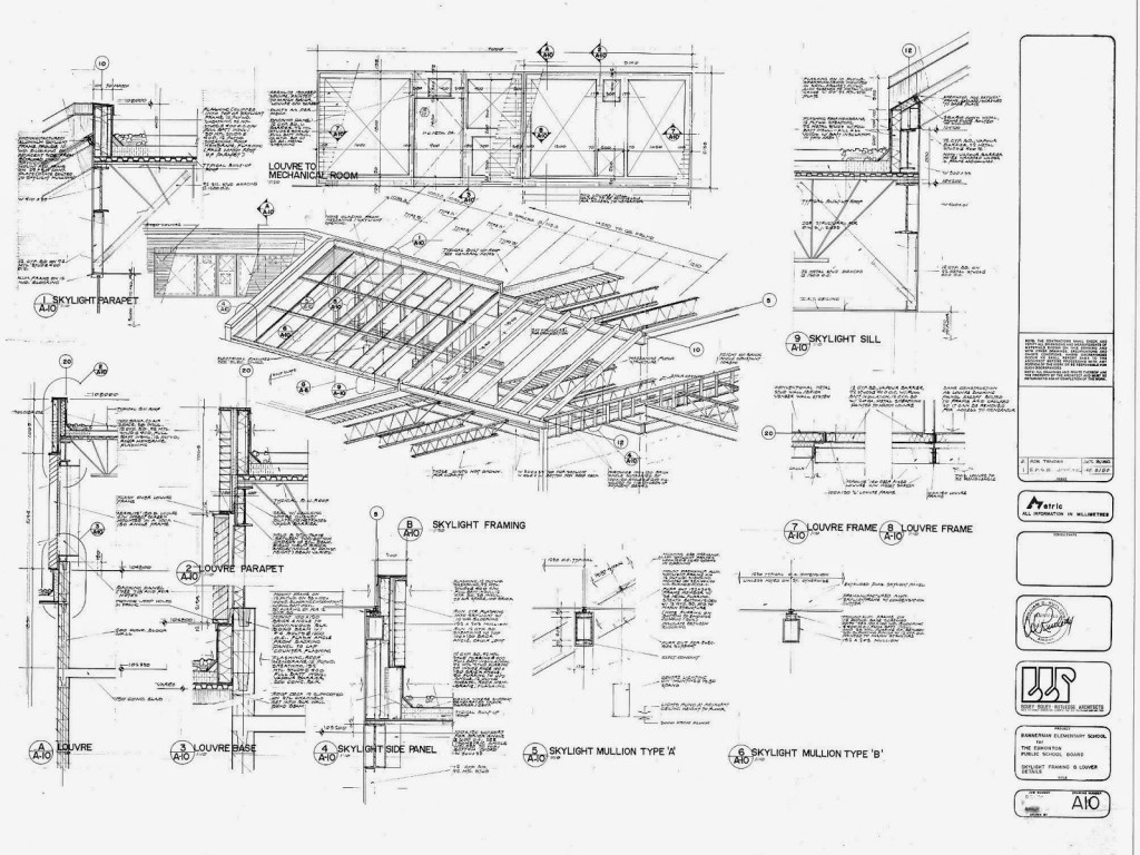
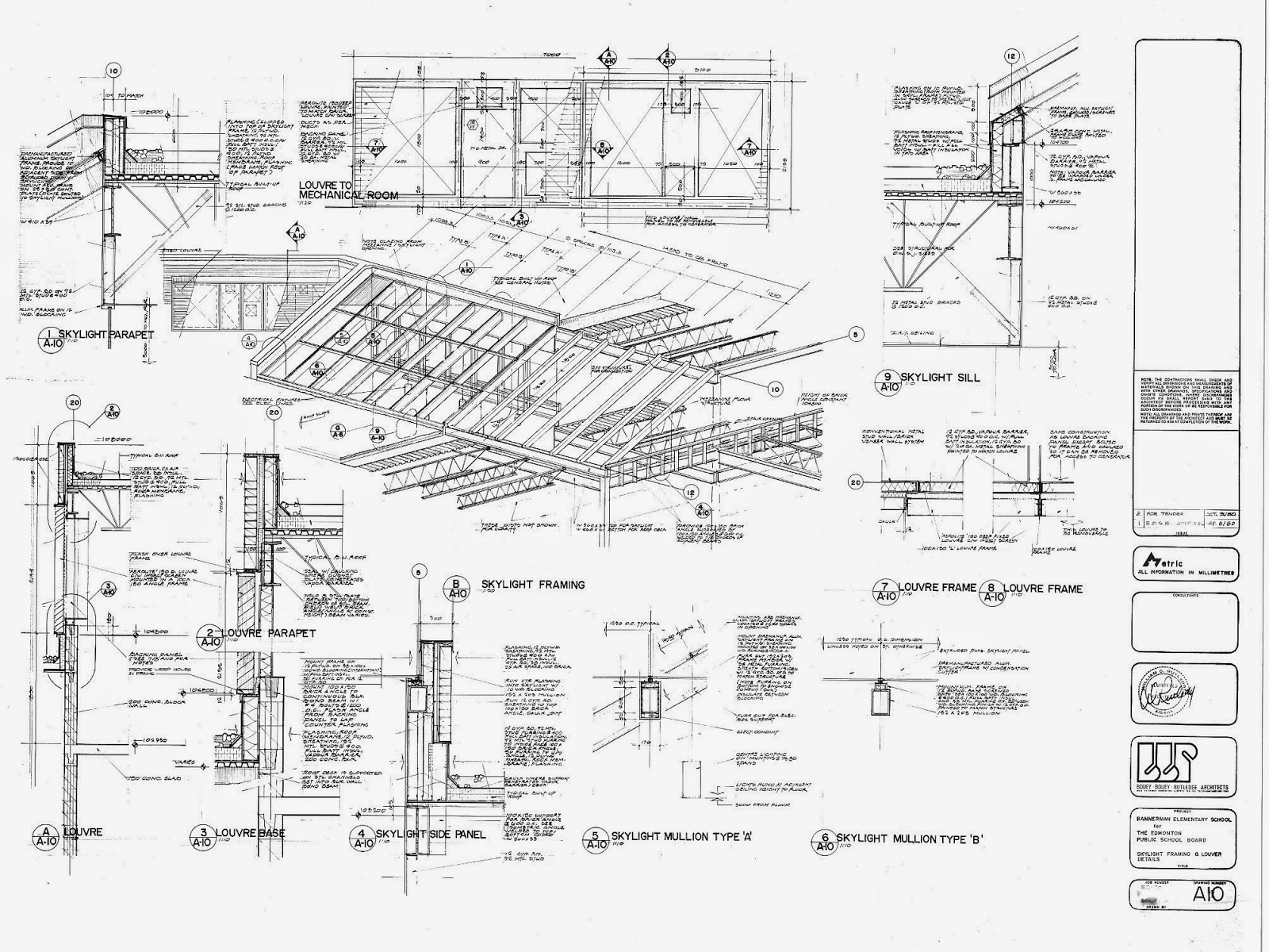
Were contemporary designers adroit at thermal migration, through knowledge based on more demanding climates, many of the buzzword concepts pervasive today would have little currency. An anecdotal example – in the mid fifties, Canadian architects, engineers and manufacturers explored `Triple- pane windows.’ Their findings considered efficiencies, heat losses and material performance. They determined that an integral part of heat loss could be diminished, by thermally isolating the frame jams which held the insulated glass in place. Triple paned glazing panels were of nominal value, when metal to metal contact within the frames allowed heat to more efficiently migrate out. While dated, Exhibits 6-7 illustrate institutional construction details of two buildings in northern Alberta. these buildings enjoy -40d F / -40 C average Cold, with swings as low as -60 F /-51.44 C. In both structures, insulation protects structural members, obviating issues of movement due to expansion and contraction due to heat. This promotes structural, membrane and thermal integrity. Designed environments last longer, maintain system performance and economic sustainability.

Sustainability of Urban Fabric
Developers, Institutional clients, Urban Designers and Architects often opt to demolish older, and / or historic structures, enabling them to start with a `clean sheet of paper.’ This creates holes in the municipal psyche, the fabric of Urban Design. Cities evolve in time, where older structures create senses of place, backdrops for the settings of life. Sustainability of the Urban Fabric can be enhanced through the rehabilitation and renovation of existing structures into mixed uses or divergent ones. Exhibit 8 illustrates the adaptive rehabilitation of a historic Univeristy building to maintain campus integrity while providing for growing demands of use and thermal efficiency. At the time of rehabilitation, costs for such ran exactly one third (1/3 ) the cost of providing a like sized modern building constructed to institutional standards. Renovation and rehabilitation of significant buildings sustains the urban fabric by providing economically viable space.

Sustainability of Urban Memory and Dreams
Venice, Italy is sustainably indulgent. She provides cultural memories of a renaissance past. Her cultural image is not simply memories of a bygone era, it is the stuff of dreams for people to create. Throughout our communities, historic & older buildings sustain our communities, the senses of place we hold in common. Historic and older buildings need to continue providing the community stages we exist with. Need more be mentioned?
Sustainability of Honesty and Common Sense
Much coursework has referenced Leadership in Energy & Environmental Design (LEED.) Currently in vogue. LEED is many things, to many people – be they LEED certified professionals, owners, contractors or public. LEED focuses on the benefits of environmental, resource and energy efficiencies. Little is mentioned that it is also a commercial product. In a modern economic world, LEED may create a professional annuity. These comments are not critical of LEED’s sustainability intentions. These comments are objective in assessing LEED’s other roles in the world of Urban Design.
- LEED promotes specialization in the professional environment, inferring non-certified professionals produces inferior designs and/or projects.
- It expands the Designer’s role, and extends involvement beyond the completion and occupancy of the project.
- LEED promotes increased costs in construction, documentation and ongoing costs over the life of the building.
- LEED complicates, with growing complexity.
- LEED places requirements for certification on all involved professional and construction principals.
Since LEED’s inception in 1994, the U.S. Green Building Council has worked assiduously to promote the organization’s goals and directions. LEED has evolved from one standard into many, from new construction, to include schools, retail, healthcare, commercial interiors, building maintenance, neighborhood development, existing buildings and homes. Today it is a rare interview where a design professional does not tout their LEED certification, as a promotional advantage. The certification of LEED, represents a differentiation trend. This may increase. The concept expressed, is that as the design world evolves, perceived demands of specialization certificates will filter and suppress competition.Alternate sustainability programs exist. These receive little attention. One such is England’s Building Research Establishment Environmental Assessment Method (BREEAM.) This approach was adopted in Canada. It has since morphed into the Green Building Initiative (GBI). 2004 found the GBI headquartered in Portland, Oregon. This program is now referred to as `Green Globes.’ Similar to LEED, GBI concerns itself with certification of design professional. GBI focuses on two facets- proactive design, with less documentation and inherent associative costs. Certification of GBI professionals focuses on Green Building Design, then verification of implementation following construction. The intents are to:
- encourage best Green building practices through design.
- implement a more efficient level of performance assessment with reduced paperwork.
- provide an economy of fees, while limiting ongoing assessment & documentation costs.
Little mention has been made of other energy codes such as U.S. Department of Energy’s Building Energy Codes Program (BECP,) or the associative the International Energy Conservation Code (IECC.) These codes have been implemented, much like traditional building codes. There have been some which pioneered performance based options. Their intent is to reduce energy costs through traditional implementation of construction practices.When discussing Sustainability in Honesty and Common Sense, projects demand to be designed to promote, in the most positive manner possible, sustainably responsible environments. Not to co-opt responsible approaches through nuance of certification and cost.
The intent of this post, has been twofold. The first, to encourage the expansion of the concepts of `Sustainability.’ These `Sustain-abilities’ may affect the way we design and construct our projects. How do we improve Sustainability? The second, that our approaches to `Sustainable’ design implementation are in a formative state. Common regulations, building, planning & zoning, have been considered coercive. Implementing similar approaches to `sustainability’ may hinder goals rather than accomplish. In time, approaches to sustainable design will evolve and mature.
Bibliography / SourcesDouglas Farr – Sustainable Urbanism: Urban Design with Naturehttps://www.youtube.com/watch?v=uSjurs4ZnlMRichard Nixon. (2015, May 7). In Wikipedia, The Free Encyclopedia. Retrieved 04:47, May 7, 2015, from http://en.wikipedia.org/w/index.php?title=Richard_Nixon&oldid=661193847Malcolm Wells. from http://www.malcolmwells.comLeadership in Energy and Environmental Design. (2015, April 30). In Wikipedia, The Free Encyclopedia. Retrieved 04:43, May 7, 2015, from http://en.wikipedia.org/w/index.php?title=Leadership_in_Energy_and_Environmental_Design&oldid=660017683Green Building Initiative. (2013, November 12). In Wikipedia, The Free Encyclopedia. Retrieved 04:44, May 7, 2015, from http://en.wikipedia.org/w/index.php?title=Green_Building_Initiative&oldid=581327770Building Energy Codes Program. (2014, June 13). In Wikipedia, The Free Encyclopedia. Retrieved 04:39, May 7, 2015, from http://en.wikipedia.org/w/index.php?title=Building_Energy_Codes_Program&oldid=612800608



